发表时间: 2025-01-02 10:16:39
作者: 5845cc威尼人(股份)有限公司-官方网站
浏览:
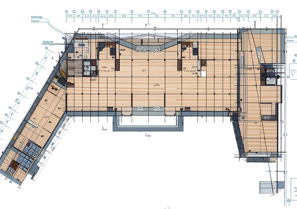
在工程结算过程中,竣工图有着不可忽视的作用。
一、竣工图反映项目实际情况
竣工图是在施工过程中,根据实际施工情况绘制的图纸。它与最初的设计图可能存在差异,这些差异反映了工程中的实际变更。对于工程师来说,竣工图能够准确呈现项目的最终状态,帮助他们进行详细的工程结算分析。对于工厂采购负责人而言,依据竣工图能精确核算工程所用到的各种材料、设备数量,从而在结算时有具体的数据支撑。

二、为工程结算提供准确定量依据
竣工图详细展示了工程各部分的实际尺寸、结构等。这为确定工程量提供了准确的依据。例如在建筑物的结算中,通过竣工图可精确计算混凝土、钢材等材料的使用量,使得结算金额计算更加合理准确,避免产生费用争议。
三、有助于结算审核工作
结算审核时,竣工图是审核人员最重要的参考文件之一。它能够直观地呈现工程的施工范围和内容。审核人员借助竣工图,可以快速比对实际完成工程量与上报工程量,从而高效地进行结算审核工作,保障结算工作的公正、公平。
竣工图在工程结算中是非常关键的一环。5845cc威尼人机电安装公司在工程施工结束后,会严格按照专业的标准绘制竣工图,为工程结算等后续工作提供优质的服务保障。